






Der Weg zur gelebten Realität
Planen Sie ein Business-Gebäude und wollen wissen, wie Erfolg bauen mit Regnauer im konkreten Fall aussieht? Überzeugen Sie sich vom integrierten Regnauer Projektablauf am Beispiel aktivoptik Bad Kreuznach.
VON INNEN NACH AUSSEN - DAS PROGRAMMING FÜR AKTIVOPTIK
Welche waren die spezifischen Anforderungen von aktivoptik?
- Raum schaffen als positive Konsequenz des jüngsten Wachstums
- Raum schaffen für zukünftiges Wachstum
- Zusätzlicher Raum für ein internes Schulungszentrum für Optik und Akustik
- Logistik (Lager und Versand) integrieren
- Corporate Identity und ökologisches Selbstverständnis in Architektur und Bauweise erkennbar machen
- nachhaltige Bauweise mit natürlichen Baustoffen für ein gesundes Raumklima
- Weiterer Imagegewinn als Arbeitgeber der Zukunft – Mitarbeitergewinnung und Mitarbeiterbindung
EG, CA. 1.151 m² NGF

1
2
3
4
1 ORIENTIERUNG Eingänge und Flure sind Schnittstellen – hier muss es fließen können.
2 WEGEFÜHRUNG Schnelle Kommunikation, Überschaubarkeit, effiziente Wege.
3 ERHOLUNG UND KOMMUNIKATION Frische Energie und neuen Input für innovatives Denken.
4 MÖBLIERUNG Welche Aufgabe braucht welche Ausstattung? Welcher Mensch braucht welche Ausstattung? Wie lässt sich eine produktive Arbeitsatmosphäre gestalterisch fördern?
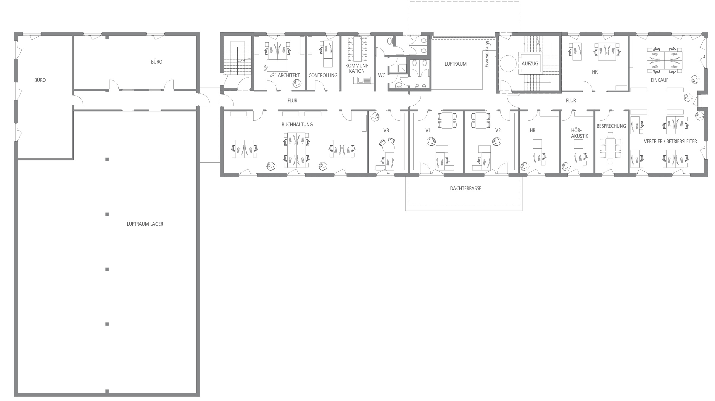
1. OG, CA. 640 m² NGF

5
6
7
8
5 STRUKTURIERUNG Wer arbeitet mit wem an welchen Aufgaben?
6 RAUMANGEBOT Welche Arbeit braucht welchen Raum?
7 ERREICHBARKEITEN Produktiver Dialog ohne lange Wege – durch gute räumliche Erreichbarkeit z.B. der Führungskräfte.
8 ARBEITPLATZ-ERGONOMIE Licht, Luft, Akustik, Anordnung der Arbeitsmittel.
Das neue Vital-Businessgebäude von aktivoptik wartet mit einer durchdachten Raumstruktur auf: Nicht nur die Anordnung der Räumlichkeiten zueinander, auch die optimale Ausrichtung der Räume auf ihre verschiedenen Funktionalitäten überzeugt. Das Foyer beeindruckt durch seine Raumhöhe und fein abgestimmte Details in der Inneneinrichtung. Durch eine doppelflügelige Tür genau gegenüber vom Eingang gelangen Gäste in den lichtdurchfluteten Schulungsraum mit Zugang zur großen Terrasse für kreative Pausen.
Clever im Gebäude verteilte Besprechungsräume werden zu Treffpunkten für produktive Meetings in unterschiedlich großen Runden. Im Erdgeschoss begegnen sich die Mitarbeiter im großzügigen und hellen Aufenthaltsraum mit Küchenzeile. Im Obergeschoss lädt die gemütliche Teeküche zum Gedankenaustausch ein.
Die Büros sind ganz auf die Aufgaben und Arbeitssituationen ausgerichtet, denen sie dienen: In welchen Abteilungen findet viel Kommunikation statt, wer braucht für seine intensive Denkarbeit mehr Ruhe? Dabei wichtig für ausnahmslos alle: viel natürliches Licht durch große Fenster, frische Luft und immer angenehme Temperaturen dank hochgedämmter Gebäudehülle kombiniert mit leistungsfähiger Haustechnik, gute Akustik durch hochwertige Dämmung und prämierte Regnauer Silence Holzbalkendecke mit sehr guter Schallrezeptur.
Clever im Gebäude verteilte Besprechungsräume werden zu Treffpunkten für produktive Meetings in unterschiedlich großen Runden. Im Erdgeschoss begegnen sich die Mitarbeiter im großzügigen und hellen Aufenthaltsraum mit Küchenzeile. Im Obergeschoss lädt die gemütliche Teeküche zum Gedankenaustausch ein.
Die Büros sind ganz auf die Aufgaben und Arbeitssituationen ausgerichtet, denen sie dienen: In welchen Abteilungen findet viel Kommunikation statt, wer braucht für seine intensive Denkarbeit mehr Ruhe? Dabei wichtig für ausnahmslos alle: viel natürliches Licht durch große Fenster, frische Luft und immer angenehme Temperaturen dank hochgedämmter Gebäudehülle kombiniert mit leistungsfähiger Haustechnik, gute Akustik durch hochwertige Dämmung und prämierte Regnauer Silence Holzbalkendecke mit sehr guter Schallrezeptur.
Das ästhetische Erscheinungsbild einer weiß verputzten Fassade mit symmetrischer Fensterkomposition wird spannungsreich durch die Kombination mit einer partiellen Holzverkleidung, die obendrein das ökologische Selbstverständnis des Unternehmens nach außen trägt.
Eingangsbereich zur Straße hin und Übergang ins Freie auf der Rückseite des Gebäudes sind mit Vorsprüngen gestaltet. Mit großzügigen Verglasungen nochmals hervorgehoben, betonen sie das repräsentative Foyer und erweitern die Arbeitswelten nach draußen.
Eines ist in Regnauer Vitalgebäuden sicher: Die angenehme Atmosphäre und das gute Raumklima bedeuten nicht weniger als eingebaute Performancesteigerung.
Eingangsbereich zur Straße hin und Übergang ins Freie auf der Rückseite des Gebäudes sind mit Vorsprüngen gestaltet. Mit großzügigen Verglasungen nochmals hervorgehoben, betonen sie das repräsentative Foyer und erweitern die Arbeitswelten nach draußen.
Eines ist in Regnauer Vitalgebäuden sicher: Die angenehme Atmosphäre und das gute Raumklima bedeuten nicht weniger als eingebaute Performancesteigerung.
EINE GALERIE DER INSPIRATIONEN
Jedes Regnauer Vitalgebäude fürs Business ist entwickelt und gebaut für ganz individuelle Anforderungen. Für Nutzer unterschiedlicher Branchen, Unternehmensgrößen und Geschäftsmodelle. Sammeln Sie Ideen, von denen einige bestimmt auch auf Ihr Unternehmen übertragbar sind.



























































