Individuell, markant, mit vielen praktischen Seiten. So stellt sich dieses Vitalhaus für die Familie mit drei Kindern dar. Es bietet alles fürs komfortable Leben auf zwei Etagen.
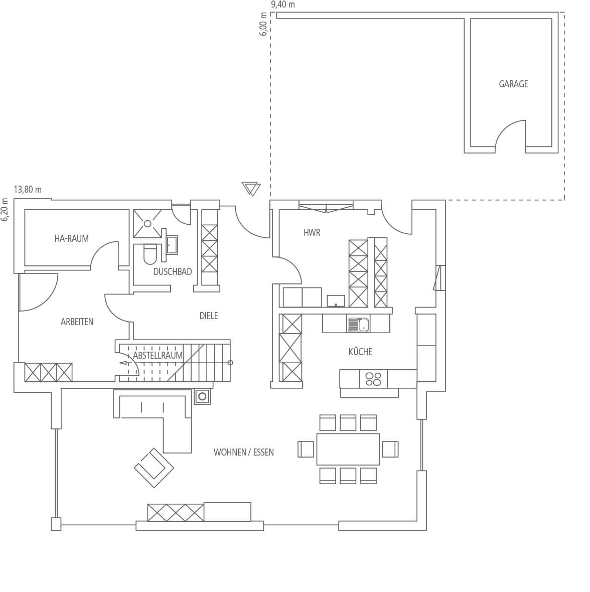
Durch einen Hausanschlussraum im Erdgeschoss kann auf einen Keller ganz verzichtet werden. Weitere funktionale Anforderungen sind durch das Arbeitszimmer, einen großen Hauswirtschaftsraum direkt neben der Küche sowie einen Abstellraum im Obergeschoss bestens erfüllt.
Auskragungen erweitern den Baukörper planerisch intelligent und geben an genau den passenden Stellen gezielt „mehr Raum fürs Leben".
Auch die Fassadengestaltung nimmt diese Ideen auf und setzt sie mit moderner Holzverschalung gekonnt in Szene.
Das Haus kommt Ihren Vorstellungen schon sehr nahe? Sprechen Sie mit uns über das Regnauer Bonus-Konzept und über Ihre ganz persönlichen Individualisierungswünsche.