Die Gebäudehülle hat Passivhaus-Niveau und ist abwechslungsreich gestaltet. Eine Fassade mit weißem Putz und partieller Holzverschalung wirkt sympathisch und einladend. Große Fensterflächen versorgen die Bewohner mit reichlich Tageslicht.
Die Terrasse ist großzügig konzipiert und umfängt den gesamten unteren Wohn-, Ess- und Kochbereich. Ein Platz zum Entspannen.
Das Duschbad und ein zusätzliches Zimmer im Erdgeschoss ermöglichen barrierefreies Wohnen.
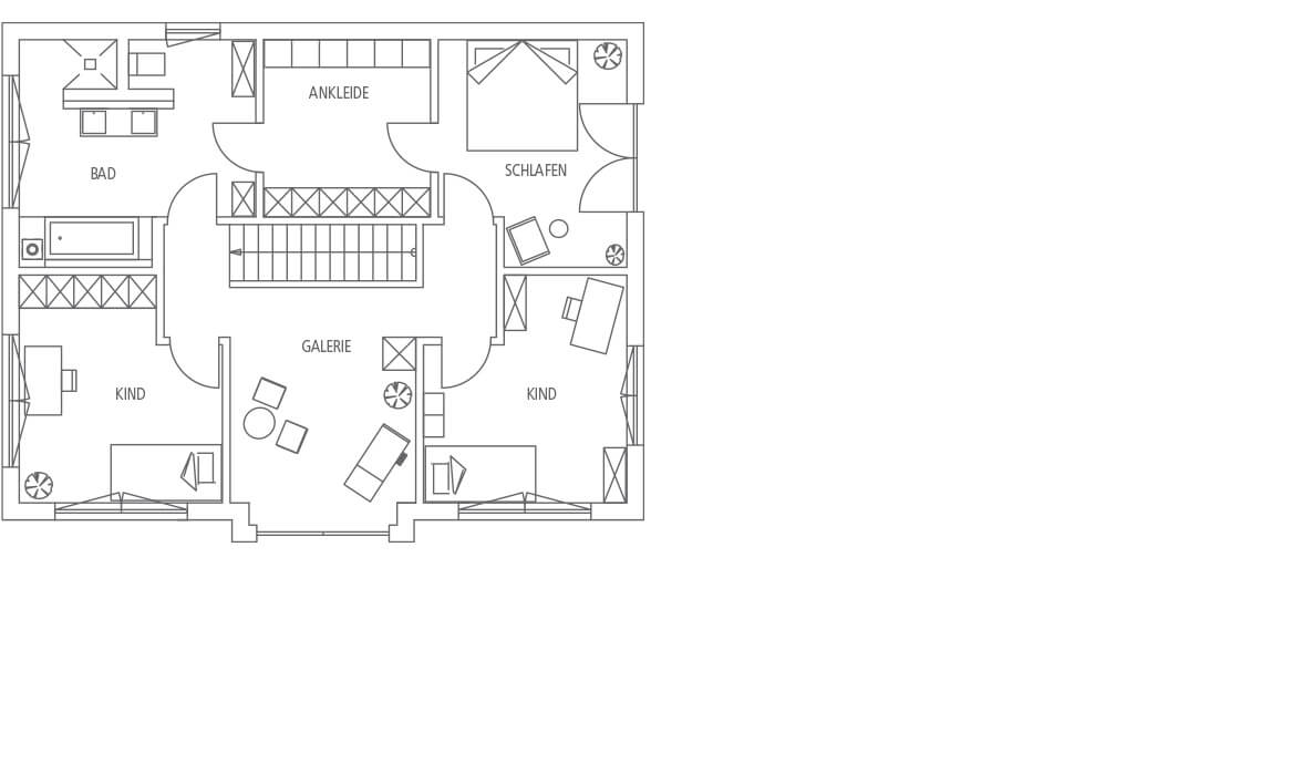
Das „Innenleben" wirkt gemütlich-modern, perfekt für die Familie mit zwei Kindern. Die geradläufige, freistehende Treppe in elegantem Design führt in eine lichtdurchflutete Galerie.
Das Haus kommt Ihren Vorstellungen schon sehr nahe? Sprechen Sie mit uns über das Regnauer Bonus-Konzept und über Ihre ganz persönlichen Individualisierungswünsche.