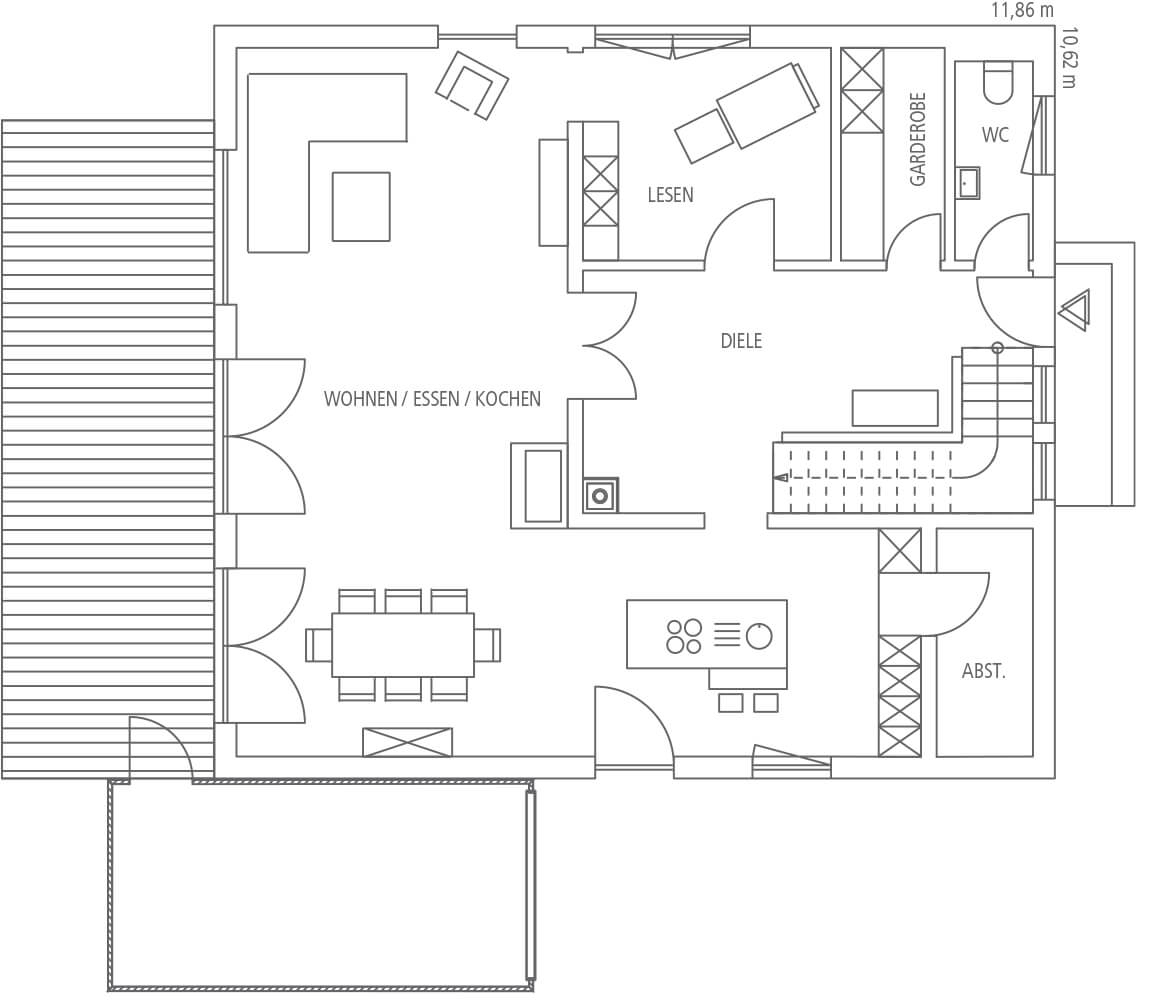
Modern gestaltet bietet dieses Regnauer Vitalhaus viel Platz. Großzügig verteilt sich der Wohn-, Ess- und Kochbereich im Erdgeschoss. Ohne Zwischenwände und fast komplett über drei Seiten. Der Luftraum in die obere Etage unterstreicht das offene Flair.
Viel Raum für Entfaltung im Obergeschoss mit Studio-Bereich, drei Zimmern, einer Ankleide und zwei Bädern.
Großflächige Fenster erstrecken sich über die gesamte Westseite und lassen viel natürliches Tageslicht einfallen.
Die Abendsonne in vollen Zügen genießen: Eine Terrasse geht stufenlos in den grünen Gartenbereich über.
Das Haus kommt Ihren Vorstellungen schon sehr nahe? Sprechen Sie mit uns über das Regnauer Bonus-Konzept und über Ihre ganz persönlichen Individualisierungswünsche.