Die kreativen Architekten von Regnauer haben gemeinsam mit der Baufamilie des Hauses Schwabach bewiesen, dass hohe Funktionalität und hoher gestalterischer Anspruch sich hervorragend miteinander verbinden lassen. So hält es auf zwei Geschossen ohne Unterkellerung alles bereit, was das Leben angenehm macht. Und zeigt dabei konsequente Architektur der klassischen Moderne, die sich durch Geradlinigkeit sowie Reduziertheit bei Farbigkeit und Materialität beweist.
Das Erdgeschoss vereint auf intelligente und kompakte Weise eine Vielzahl unterschiedlicher Funktionen des Alltags. Beispiele sind Parkraum für bis zu drei Fahrzeuge, Technikraum, Hauswirtschaftsraum, Arbeitszimmer und Speis.
Auch das Auge wird hier verwöhnt. So setzt sich der äußere Eindruck im Inneren fort. Der Wohn- und Essbereich baut seine spannungsreiche Aura auf zwischen offenen Räumen und transparentem Übergang ins Freie.
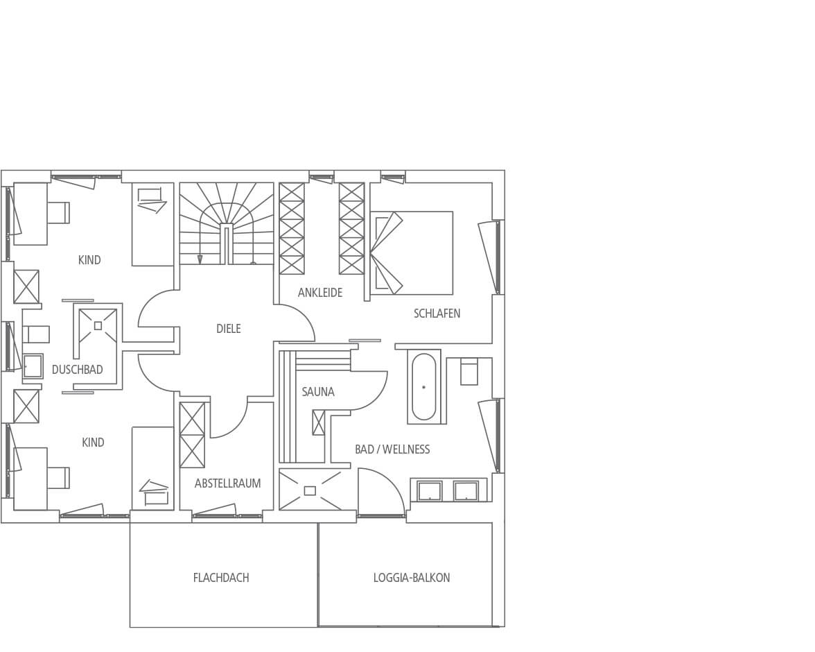
Als idealer Rückzugs- und Regenerationsort stellt sich das Obergeschoss dar. Ein Vitalbad inkl. Sauna und Loggia markiert den Anspruch.
Kinderzimmer mit eigenem Duschbad zeugen von praktischem Denken.
Das Haus kommt Ihren Vorstellungen schon sehr nahe? Sprechen Sie mit uns über das Regnauer Bonus-Konzept und über Ihre ganz persönlichen Individualisierungswünsche.