Architektonische Gestaltung für Anspruchsvolle: Der moderne Kubus präsentiert sich in souveräner weißer Fassade. Der Einsatz der Fenster setzt die klare Formensprache fort.
Wohnen innen und außen verschmelzen. Große Fensterflächen, meist bodentief, und eine Terrassenüberdachung, die den Bau an sein Umfeld optisch und funktional anschließt, sind hier Programm.
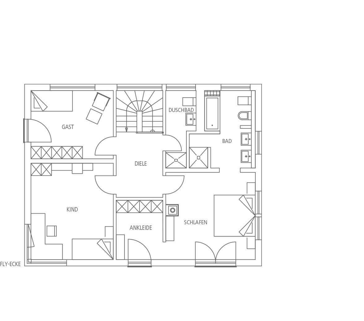
Geradlinigkeit und optische Ordnung prägen auch den Grundriss in EG und OG. Das Auge erfreut sich daran – höchster Komfort inklusive.
Vitales Wohnen bis ins Detail: Raumhohe Verglasung mit Fly-Ecke, Kamin, Diele im OG, integrierte Ankleide und Luxus-Wellness-Bad sind Ausdruck dieser Haltung.
Das Haus kommt Ihren Vorstellungen schon sehr nahe? Sprechen Sie mit uns über das Regnauer Bonus-Konzept und über Ihre ganz persönlichen Individualisierungswünsche.